En el mes de octubre iniciamos un gran proyecto valorado en más de $140,000.00, y lo comenzamos por fe, pues no teníamos nada. Sin embargo Dios comenzó a suplir según comenzamos a trabajar.
El proyecto es “Duplex para reinserción social” el cual consiste en construir en el Proyecto Victoria (Comunidad terapéutica para adictos a drogas y jóvenes en maras) 12 apartamentos para que los internos con familia se pueden quedar con ellas cuando le visiten, y también dar cabida a voluntarios que quieran venir a apoyar en el trabajo por corto tiempo.
Con el uso de los mismos internos comenzamos a construir la infraestructura, o sea los posos sépticos, sistema de agua y los cimientos. Del primer modulo que consta de cuatro apartamentos. Serán tres módulos, cada uno con cuatro apartamentos en forma de dúplex. Adjunto le enviamos algunas fotos, así como los avance del trabajo hasta principio de enero, y los donativos recibidos para ese fin.
Si desea apoyarnos, puede depositar su ayuda en Honduras en la siguiente cuenta en moneda nacional (lempira)
BANCO ATLANTIDA S.A TEGUCIGALPA, HONDURAS
Para dentro del país cuenta de ahorro en lempiras No. 1204314841
Si su ayuda es del exterior la puede enviar siguiendo la siguiente instrucción por transferecia bancaria a:
BANCO ATLANTIDA, TEGUCIGALPA, HONDURAS, cuenta de ahorro en dólares No. 1204314866. Para la cuenta en dólares del extranjero deberán notificar al banco el código SWIFT que es: ATTDHNTE.
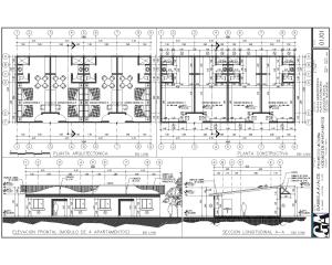
PLANO DEL DISEÑO DE CADA APARTAMENTO
FOTO DE LOS TRABAJOS HASTA PRINCIPIO DE ENERO DEL 2013
INGRESOS DE APOYO RECIBIDO PARA EL PROYECTO DE LOS DUPLEX EN EL 2012
- 1 Oct / Ofrenda de Eliezer en Honduras (Ex interno) $100.00
- 1 Oct / Ofrenda de Mario Fumero $100.00
- 5 Oct / Dra. Karla Rodríguez $300.00
- 12 Oct / Ofrenda estudiantes Vida Abundante, Hond. $250.00
- 31 Oct / Ofrenda Rafael Escalera $300.00
- 31 Oct / Ofrenda Blanca de Rivera $150.00
- 31 Oct/ Ofrenda Hermanos Brigadas de Amor Cristiano $160.00
- 6 Dic / Ofrenda de Mario Fumero $500.00
- 6 Dic / Ofrenda Iglesia Escandinava, Fuengirola, España $1,080.00
- 6 Dic/ Iglesia de Formación Cristiana, Miami. $400.00
Total recibido para el proyecto————————– $3,340.00




